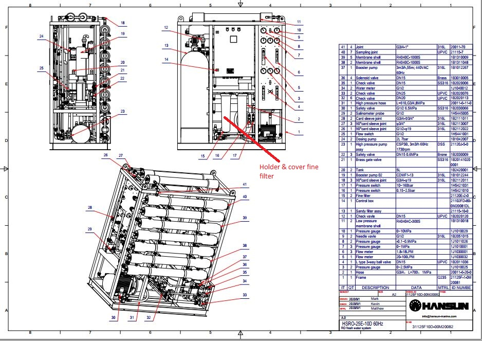
询价船舶备件—盖和支架精细过滤器(CK-R20240731-05)询价管理员7月31日 09:43发布121COVER & HOLDER FINE FILTER DRAWING-REVERSES-OSMOSIS.pdf 下载 pdf文件 397.5K 仪器仪表泰州昌宽科技船用设备船舶物料船舶配件 温馨提示:该询价订单具有时效性,询价发布2天内报价有效,若有疑问或其他问题,请在下方留言或联系客服。
请登录后查看报价内容